+375 29 383-32-33

+375 29 343-03-53

Гомель, Кирова, 3

Проект дома Клайпеда

Клайпеда- дом идеально подходящий для дачного участка. Компактный мансардный дом с одной спальней, имеет все необходимое для сезонного проживания или проживания семьи из двух человек.

Есть вопросы по проекту?

Задайте их нашему архитектору!

Быстрая и бесплатная консультация по любому типовому проекту

Что входит в состав:

- Общие характеристики дома
- Цветные 3D фасады
- Ч/б фасады с отметками высот
- Чертежи планов этажей с детальными размерами
- Поэтажные планы (со схематичной расстановкой мебели)
- Разрезы дома с высотами
- План кровли
- План фундамента

Проект готов к отправке

Работаем по всей Беларуси.

Высылаем проекты по почте.

Типовой проект

гаража или бани

В ПОДАРОК!

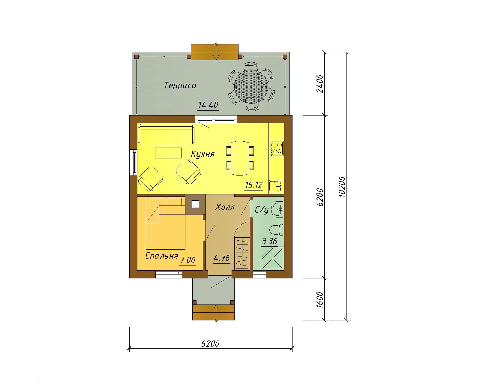
Общая площадь, м.кв.

34.57

Жилая площадь, м.кв.

7.00

Габаритные размеры, м.

6.2 х 10.2

Цокольный этаж

Нет

Гараж

Нет

Терраса

Есть

Площадь террасы, м.кв.

14.40

Количество спален

1 спальня

Стены

Блоки газосиликатные+утепление

Фундамент

МонолитныйЖелезобетонныйСвайный

Кровля

Еврошифер

Перекрытия

Деревянные балки

Состав проекта


Представленные комплекты чертежей разработаны с учетом ТКП, СТБ и строительных правил.
Мы рекомендуем приобрести Строительный раздел «АС», который полностью подготовлен для строительства и регистрации дома в гос. органах.

Также, вы можете выбрать другую комплектацию (цена указана в белорусских рублях):

Архитектурный раздел (АР)


Этап разработки концепции будущего дома, его внешнего вида, планировок и подробных размеров по ним. 
Это минимальный комплект чертежей необходимый для получения разрешения на строительство.

В комплект входят:

 

- Общие характеристики дома
- Цветные 3D фасады
- Ч/б фасады с отметками высот
- Чертежи планов этажей с детальными размерами
- Поэтажные планы (со схематичной расстановкой мебели)
- Разрезы дома с высотами
- План кровли
- План фундамента

300

Схема привязки дома и хоз. построек  на участок – раздел генеральный план (ГП)

 

Схема привязки необходима для размещения ваших построек в границах участка. Для получения разрешения на строительство необходимо согласовать разделы АР+ГП во всех заинтересованных службах Вашего города.


(Выполняется для жителей Гомеля и Гомельского района).

В комплект входят:

 

Архитектурный раздел (АР) +
Генеральный план (ГП)
- генеральный план участка (схема привязки);
- пояснительная записка;
- комплект разрешительной документации на строительство.

400

Для регистрации и строительства - архитектурно-строительный раздел (АС)

 

Нужен для того, чтобы строители знали полный конструктив дома от фундамента до кровли и могли его возвести без ошибок и перерасхода материалов. 

В комплект входят:

 

Архитектурный раздел (АР) +
Строительный раздел:
- Чертежи фундамента
- Схемы устройства перекрытий этажей
- Кладочные планы этажей
- Экспликация полов
- Вентиляционные каналы и дымоходы
- Перемычки над окнами и проёмами
- Схемы несущих элементов кровли
- Конструктивные узлы и детали
- Спецификации материалов

1300

Для регистрации, строительства + разработка инженерных сетей (АС+ИС)

 

Раздел инженерные сети  позволяет строителям проложить коммуникации  в процессе возведения дома, что сократит расходы на материалы и монтаж.
Комплектация включает также все для регистрации и строительства (раздел АС).

В комплект входят:

 

Архитектурный раздел +
Строительный раздел +
Индивидуально разработанные чертежи по:
- Отоплению
- Вентиляции
- Водопроводу
- Канализации
- Электрике

1800

Составление паспорта застройщика

60 рублей

Проект застройки земельного участка (паспорт застройщика) – это комплект документов, который позволит Вам приступить к постройке своего дома(гаража ,бани, хоз. постройки) на земельном участке.


В состав комплекта входит:
- генеральный план участка (схема привязки);
- пояснительная записка;
- комплект разрешительной документации на строительство.


Необходимы документы:
- свидетельство о государственной регистрации земельного участка (или другой акт правообладания);
- паспорт лица заключающего договор на выполнение проекта;
- выписку из решения администрации района на проведение проектно-изыскательских работ и строительство (реконструкцию) индивидуального жилого дома, хозяйственных построек;
- архитектурно-планировочное задание (получить у районного архитектора);
- земельно-кадастровый план земельного участка, выполненный РУП «Гомельское агентство по государственной регистрации и земельному кадастру»;
- выкопировку из генерального плана с обозначением Вашего участка и нанесением строений, расположенных на данном и прилегающих земельных участках, инженерных коммуникаций, улиц, проездов (РУП «Гомельское агентство по государственной регистрации и земельному кадастру»).

Согласование проекта

40 рублей

Для того что бы начать строительство дома необходимо узаконить тот проект, который Вы хотите построить. Для этого необходимо согласование проекта с местными органами. Надо отметить, что не все Ваши пожелания могут соответствовать градостроительным и пожарным нормам.  Согласование проекта – это предоставление надзорным органам доказательств того, что объект, строительство которого планируется, является жизнеспособным и безопасным в своей эксплуатации. Эти доказательства включают в себя готовый проект дома и оформленную обязательную документацию.


Согласования выполняются в следующих инстанциях:
- главный архитектор г. Гомеля;
- главный архитектор гомельского района;
- главный архитектор района, на территории которого расположен земельный участок;
- КПУП «Гомельводоканал»;
- Гомельский городской РЭС;
- РЭС Гомельского района;
- РУП "Белтелеком" гомельский филиал;
- РУП "Белтелеком" районный филиал;
- ПУ "Гомельгаз»;
- Гомельский райжилкомхоз;

Дополнительная копия проекта

от 10 рублей

Дополнительная копия проекта может потребоваться для передачи чертежей строителям или другим специалистам, которые будут работать над строительством вашего дома для ускорения процесса. 
Также, дополнительная копия может потребоваться для предоставления в районную архитектуру.
Обычно дополнительная копия заказывается вместе с проектом. Если она понадобилась спустя какое-то время – копию можно заказать также, как первоначальный проект. Необходимо лишь указать, что ранее данный проект приобретался на такого-то заказчика.

Внесение изменений в проект

15 рублей / 1 лист

Любой из готовых типовых проектов может быть изменен по Вашему желанию!


Не всегда выбранный проект дома полностью соответствует всем Вашим требованиям, в результате чего появляется необходимость что-либо в нем изменить или усовершенствовать по своему желанию. Эти корректировки могут касаться функциональной перепланировки помещений, изменения расположения и формы оконных и дверных проемов. Обо всех желаемых изменениях в проекте следует сообщить своему архитектору и получить его консультацию по данному вопросу.


Наиболее часто вносимые изменения в готовый проект:


- Изменение параметров фундамента.
- Изменение угла наклона крыши.
- Изменение размера и расположения оконных и дверных проемов.
- Выбор других отделочных материалов.
- Адаптация чердака под жилую мансарду.
- Зеркальное отображение проекта.
- Перепланировка в пределах несущих конструкций.
- Перенос и изменение назначения помещений.

Проектирование инженерных сетей

от 100 рублей

Проектирование инженерных сетей – важнейшая составляющая любого архитектурного проекта. В большинстве случаев для современных типовых проектов данный раздел не входит в изначальную комплектацию, так как чаще всего пожелания клиента расходятся с запроектированным расположением приборов и агрегатов. Поэтому мы предлагаем разработатьпод ваши требования и пожеланияследующие виды инженерных коммуникаций: 


5.1 ВК (водопровод и канализация) 
Проект на водоснабжение и канализацию – это набор чертежей, спецификаций и указаний, необходимых для монтажа систем водопровода и канализации и подбора оборудования.
Эффективность системы водоснабжения и канализации зависит не только от правильного монтажа, но и от правильно выбранных схем и методик расчетов. Поэтому проект на водоснабжение позволит Вам сэкономить деньги, а также время на монтажные работы и подбор оборудования.
Необходимые документы:
- технические условия на водоснабжение (КПУП «Гомельводоканал» для жителей города Гомеля, или «Райжилкомхоз» для жителей Гомельского района);
- архитектурные решения (если они есть и дом еще не построен)
- обмеры дома (если отсутствую архитектурные решения и дом уже построен).
Стоимость разработки проекта от 150 руб. 


5.2 НВК (наружниеводопровод и канализация )
Проект водоснабжения и канализации (наружные сети) необходим для подключения дома к городской системе водоснабжения и заключения договора с эксплуатационной организацией.
Необходимые документы:
- фрагмент топографического плана (берется в Гомельском агентстве по государственной регистрации и земельному кадастру);
- технические условия на водоснабжение (КПУП «Гомельводоканал» для жителей города Гомеля, или «Райжилкомхоз» для жителей Гомельского района);
- заключение о возможности строительства водопровода и канализации (Гомельский городской центр гигиены и эпидемиологии).
- Посадка дома и вспомогательных построек на участок (или генплан участка).
Стоимость разработки проекта 100 руб. 


5.3 ЭС (внутреннее электроснабжение дома)
Проект внутреннего электроснабжения дома требуется для качественной организации сетей освещения, розеточной сети и заземления. Важно: Качественный проект ― залог электробезопасности.  
Необходимые документы:
- Технические условия на электроснабжение (сервисно-расчетный центра филиала «Энергосбыт» в «Одно окно»);
- Фрагмент топографического плана с указанием места расположения опоры подключения (Гомельском агентстве по государственной регистрации и земельному кадастру).
- Архитектурные решения (если они есть и дом еще не построен).
- Обмеры дома (если отсутствую архитектурные решения и дом уже построен).
- Ранее выполненный проект электроснабжения стройплощадки, при его наличии.
Стоимость разработки проекта от 150 руб. 


5.4 ЭС (внешнее электроснабжение стройплощадки или дома).
Проект на электроснабжение жилого дома или стройплощадки необходим для подключения к электрической сети. Все электромонтажные работы будут производиться на основании выполненного проекта. Вот почему так важно при строительстве дома сделать проект электроснабжения
Необходимые документы:
- Технические условия на электроснабжение (сервисно-расчетный центра филиала «Энергосбыт» в «Одно окно»);
- Фрагмент топографического плана с указанием места расположения опоры подключения (Гомельском агентстве по государственной регистрации и земельному кадастру).
Стоимость разработки проекта 100 руб. 


5.5 ОВ (отопление)
Система отопления дома – это сложнейшая система, которая определяет как комфорт Вашего дома, так и затраты на его обогрев. Поэтому подбор правильной системы отопления является наиважнейшим фактором при строительстве жилья. Если Вы не хотите переплачивать за тепло и чувствовать себя уютно в собственном доме, Вам необходимо разработать проект устройства системы обогрева Вашего дома. Это позволит избежать ошибок при монтаже и подборе оборудования, а также сократить расходы на устройство отопления Вашего дома.
Необходимые документы:
- Архитектурные решения (если они есть и дом еще не построен).
- Обмеры дома (если отсутствую архитектурные решения и дом уже построен).
Стоимость разработки проекта от 150 руб. 

Выезд специалиста на объект

30 / 50 рублей

Обмерочные работы на объекте осуществляются для создания точных чертежей. Специалист проводит все необходимые меры по выявлению фактических параметров объекта на месте. Собирает технические и строительные данные, которые будут нужны при дальнейшем проектировании. А в последствии, во избежание различных нестыковок при строительстве проекта.Время проведения обмерочных работ зависит от площади обмеряемого объекта. 


Выезд специалиста на объект осуществляется в том случае, когда это необходимо. 

Вам также могут понравиться