+375 29 383-32-33
+375 29 343-03-53
Гомель, Кирова, 3
Индивидуальное проектирование частных домов
Архитектурный раздел (АР)

На стадии архитектурного проекта прорабатывается планировка дома, определяется внешний вид и цветовая гамма фасадов. Архитектурный проект необходим для получения разрешения на строительство и регистрации в государственных органах.
В архитектурных чертежах указаны все точные размеры дома, толщина стен и перегородок, расположение окон и дверей, лестниц.
- общие характеристики дома
- цветные 3D фасады
- ч/б фасады с отметками высот
- чертежи планов этажей с детальными размерами
- поэтажные планы (со схематичной расстановкой мебели)
- разрезы дома с высотами
- экспликации окон и дверей
- план кровли
- план фундамента
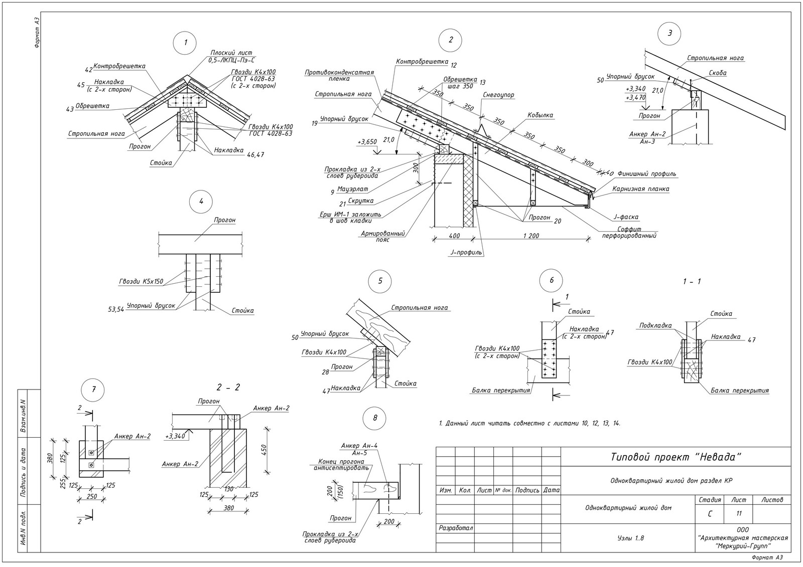
Строительный раздел (КР)

На стадии строительного раздела уточняют размеры, рассчитывают несущие конструкции. Составляют ведомости потребности материалов. Наличие строительного раздела позволяет избежать ОШИБОК в процессе строительства и ПЕРЕРАСХОДА материалов.
- чертежи фундамента
- схемы устройства перекрытий этажей
- кладочные планы этажей
- экспликация полов
- вентиляционные каналы и дымоходы
- перемычки над окнами и проемами
- схемы несущих элементов кровли
- конструктивные узлы и детали
- спецификации материалов
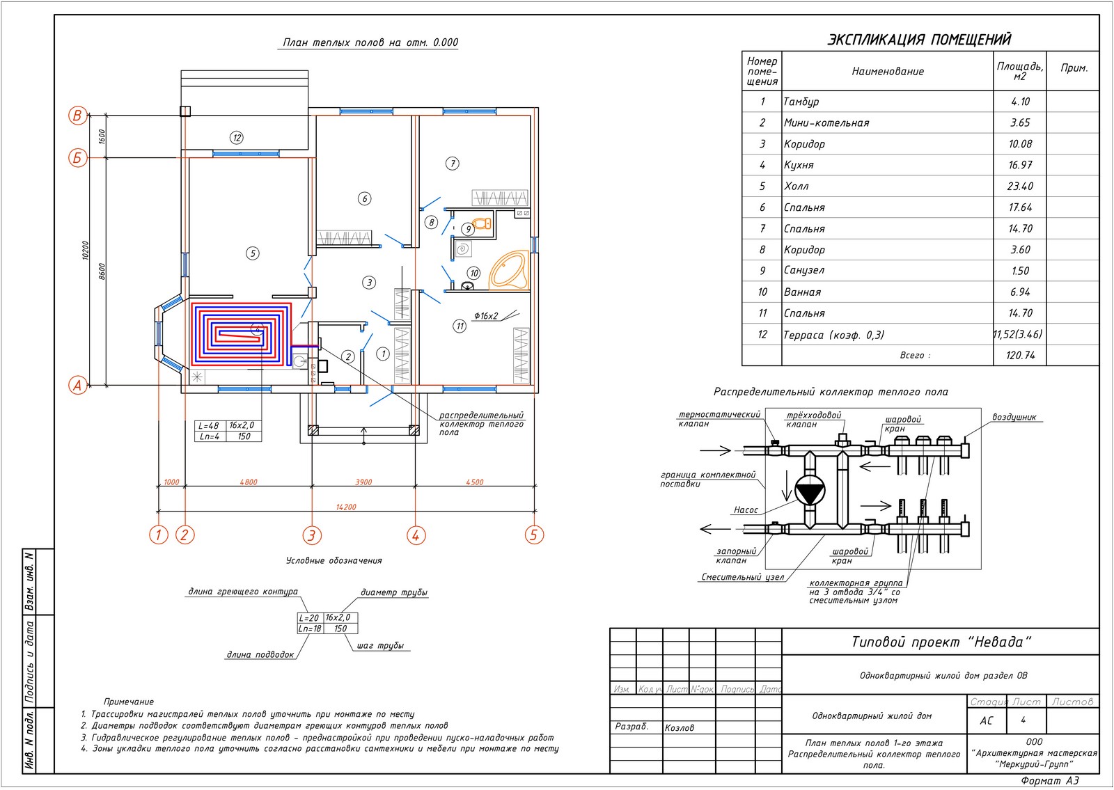
Инженерный проект

Инженерный проект позволяет верно подобрать оборудование и материалы инженерных сетей, правильно определить количество и будущее местоположение радиаторов отопления, розеток и выключателей.
В состав инженерного раздела входят чертежи, схемы и поэтажные планы по:
- отоплению
- вентиляции
- водопроводу
- канализации
- электрике
Индивидуальный проект дома
Индивидуальное проектирование – это персональный подход к созданию дома Вашей мечты.
При разработке индивидуального проекта, Вы можете реализовать собственные идеи, а также учесть все особенности земельного участка. Нужна просторная кухня с гостиной, уютные спальни и огромная комнату отдыха на мансарде? А может, нужна открытая терраса или большой спортзал? Все Ваши задумки могут воплотиться в жизнь. При разработке индивидуального проекта учитывается форма участка, его размер и рельеф, а также ориентация по сторонам света.
В результате Вы получите дом, который соответствует всем Вашим пожеланиям.